This
project is an exercise in considered reassembly – of making technically simple
but spatially consequential changes in plan and section to expose qualities
obscured by a series of perfunctory alterations implemented by previous owners
of the property, an apartment occupying the raised ground floor of an imposing Victorian
house.
The spirit of the project reflects the thinking of (amongst others) the Milanese architect Luigi Caccia Domignioni, whose belief in the richness of spatial experience achieved through the composition of apartments as multiple, interconnected rooms served as a crucial touchstone.
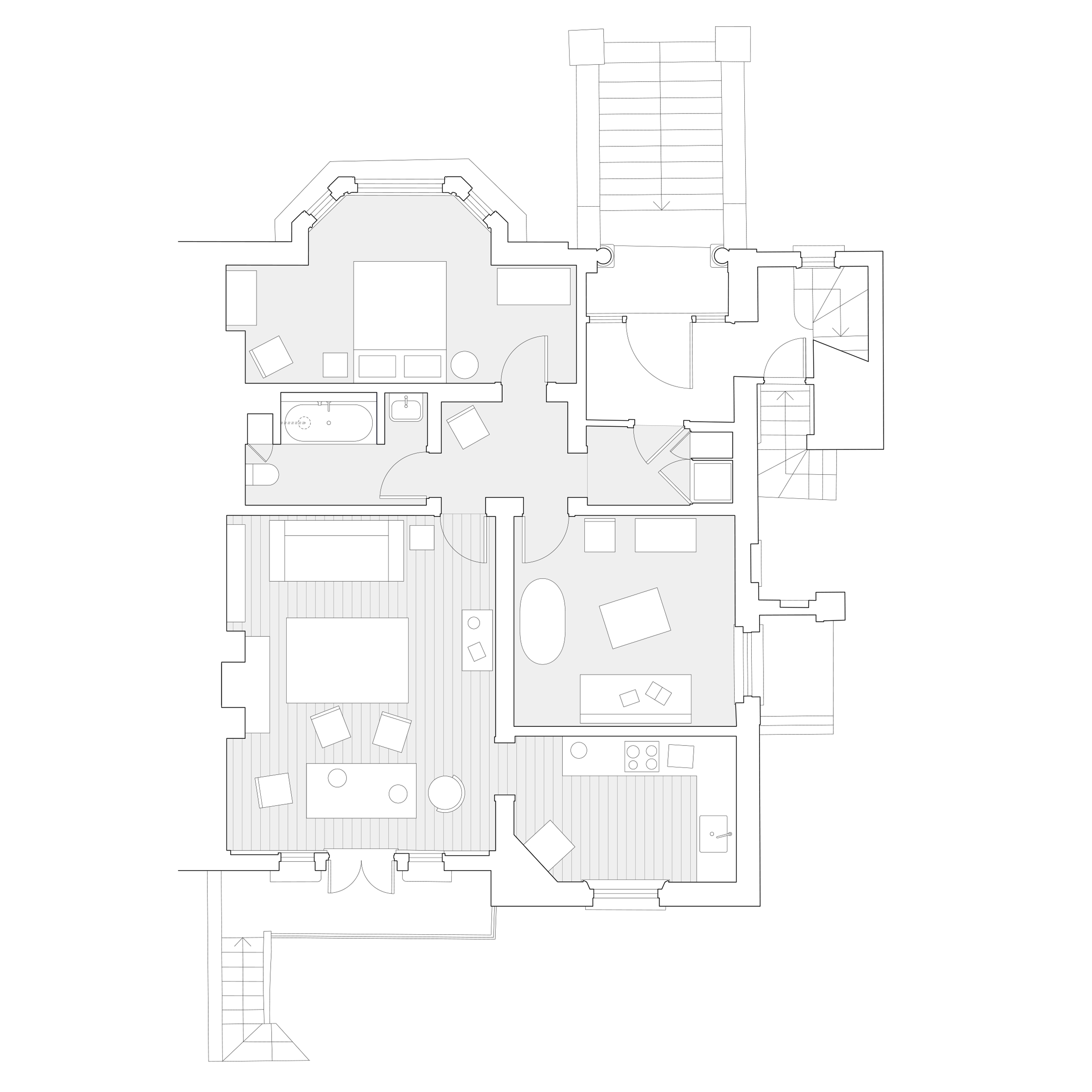
The reassembled apartment preserves the entrance in its original place, the space refashioned as a compact utility room, forming a deep threshold between the building’s common entranceway and the private domain of the flat’s interior.
At the heart of the plan, where once a narrow and light-deprived corridor led occupants to rooms along its length, a central room is formed. Unifying the five openings situated around its perimeter, richly coloured panelling lines the lower half of the room, forming a continuous perimeter sill for the display of the owners’ diverse collection of objects and artwork. Exploiting the flat’s significant height, an internal window is placed on the sill, illuminating the space from the brightly-lit bedroom beyond. The scale, proportion and material quality of the space lends it the atmosphere and dignity of an occupied room.
The apartment’s enlarged bathroom is characterised by an internal clerestory situated above a tiled shower enclosure, borrowing light from the adjacent room. The room’s soffit is decorated with a lustrous dark blue paint creating the surreal impression of a suspended body of deep water.
The largest of the apartment’s spaces, oriented eastwards, is connected to the building’s sheltered garden by an elevated terrace constructed at the time of the house’s original conversion. The room has the feel of a miniature Venetian portego – a generous sitting room positioned above the level of the garden (canal) from which rooms of smaller scale are accessed directly through openings around its perimeter.
Lastly, the kitchen, preserved in its former position, is recomposed as a simple arrangement of sulphur-coloured units unified by a stainless-steel worktop, on which slabs of stone are positioned above kitchen appliances, their material presence accentuated by the economy of their application.
The spirit of the project reflects the thinking of (amongst others) the Milanese architect Luigi Caccia Domignioni, whose belief in the richness of spatial experience achieved through the composition of apartments as multiple, interconnected rooms served as a crucial touchstone.
The reassembled apartment preserves the entrance in its original place, the space refashioned as a compact utility room, forming a deep threshold between the building’s common entranceway and the private domain of the flat’s interior.
At the heart of the plan, where once a narrow and light-deprived corridor led occupants to rooms along its length, a central room is formed. Unifying the five openings situated around its perimeter, richly coloured panelling lines the lower half of the room, forming a continuous perimeter sill for the display of the owners’ diverse collection of objects and artwork. Exploiting the flat’s significant height, an internal window is placed on the sill, illuminating the space from the brightly-lit bedroom beyond. The scale, proportion and material quality of the space lends it the atmosphere and dignity of an occupied room.
The apartment’s enlarged bathroom is characterised by an internal clerestory situated above a tiled shower enclosure, borrowing light from the adjacent room. The room’s soffit is decorated with a lustrous dark blue paint creating the surreal impression of a suspended body of deep water.
The largest of the apartment’s spaces, oriented eastwards, is connected to the building’s sheltered garden by an elevated terrace constructed at the time of the house’s original conversion. The room has the feel of a miniature Venetian portego – a generous sitting room positioned above the level of the garden (canal) from which rooms of smaller scale are accessed directly through openings around its perimeter.
Lastly, the kitchen, preserved in its former position, is recomposed as a simple arrangement of sulphur-coloured units unified by a stainless-steel worktop, on which slabs of stone are positioned above kitchen appliances, their material presence accentuated by the economy of their application.